4259 Woodbury Village Road
Offered at: $575,000
MLS®: 10361717
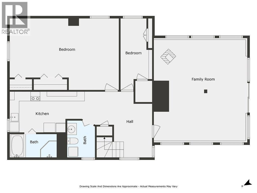
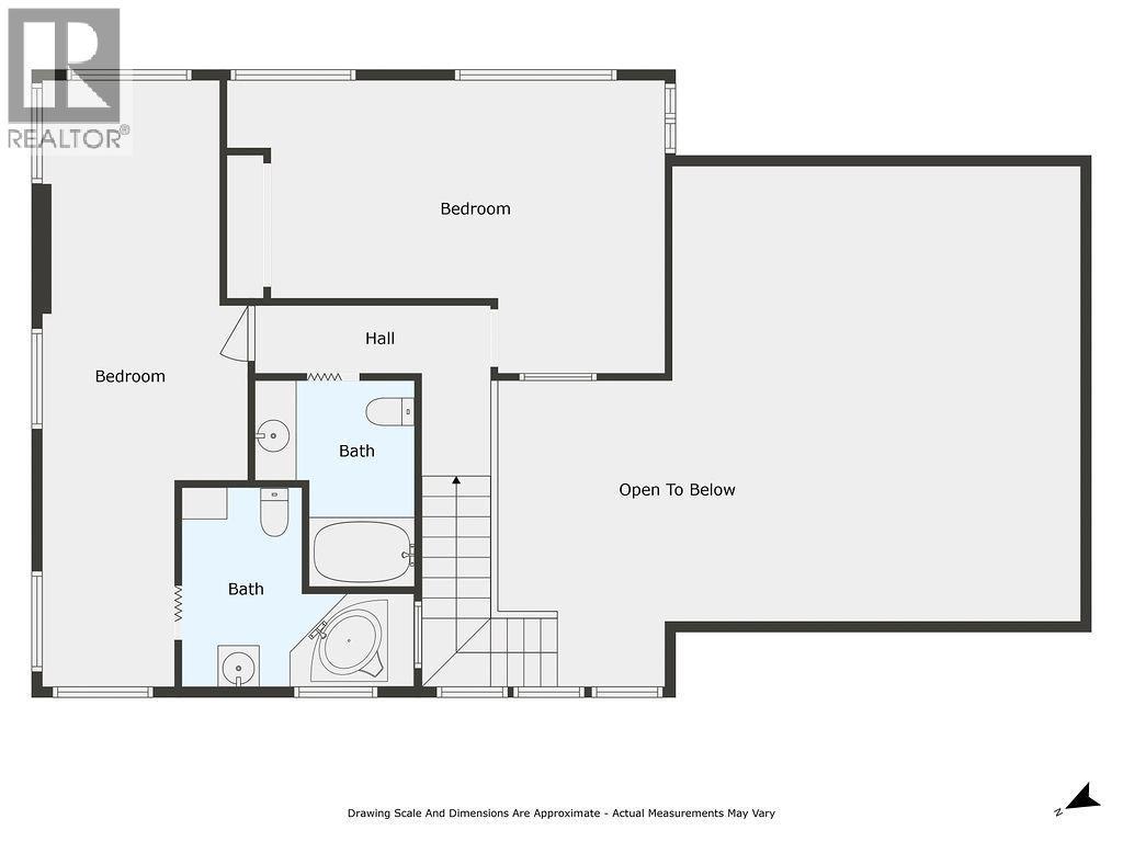
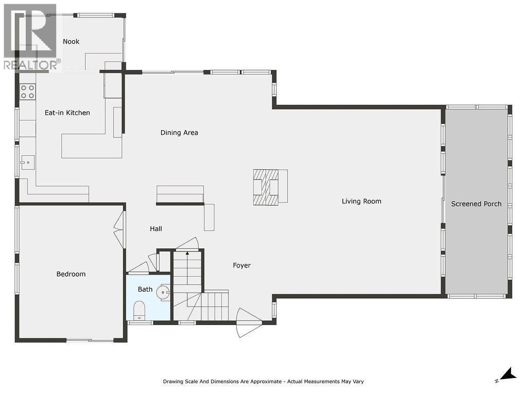
Located in the quiet neighborhood of Woodbury Village. This home, situated on 1.079 acres, offers potential for the right buyer. Featuring nearly 3500 sq ft of living space, with 4 bedrooms, 5 bathrooms, and 2 kitchens. Key attributes include a private setting, vaulted ceilings in the living room, a cozy wood-burning stove, generously sized bedrooms and walk out basement. The property provides great views of Kootenay Lake, is conveniently close to a marina, and less than a ten minute drive from Ainsworth Hot Springs. This is a handyman special! (id:6769)
Quick Stats
Key Home Data
5
BATH(S)
4
BED(S)
3448
SQFT
YES
SHOWING AVAILABLE
Property Type:
Single Family Home Ownership:
Freehold
Payment Calculator
Calculate your monthly mortgage payment.
Mortgage Amount
$
Amortization
years
Payment Freq.
Interest Rate
%
Calculating...
All About the Details
See specific details below.
Neighbourhood Statistics
Get to know your neighbourhood.

