#313 920 Lakeside Drive
Offered at: $1,400,900
MLS®: 10365888
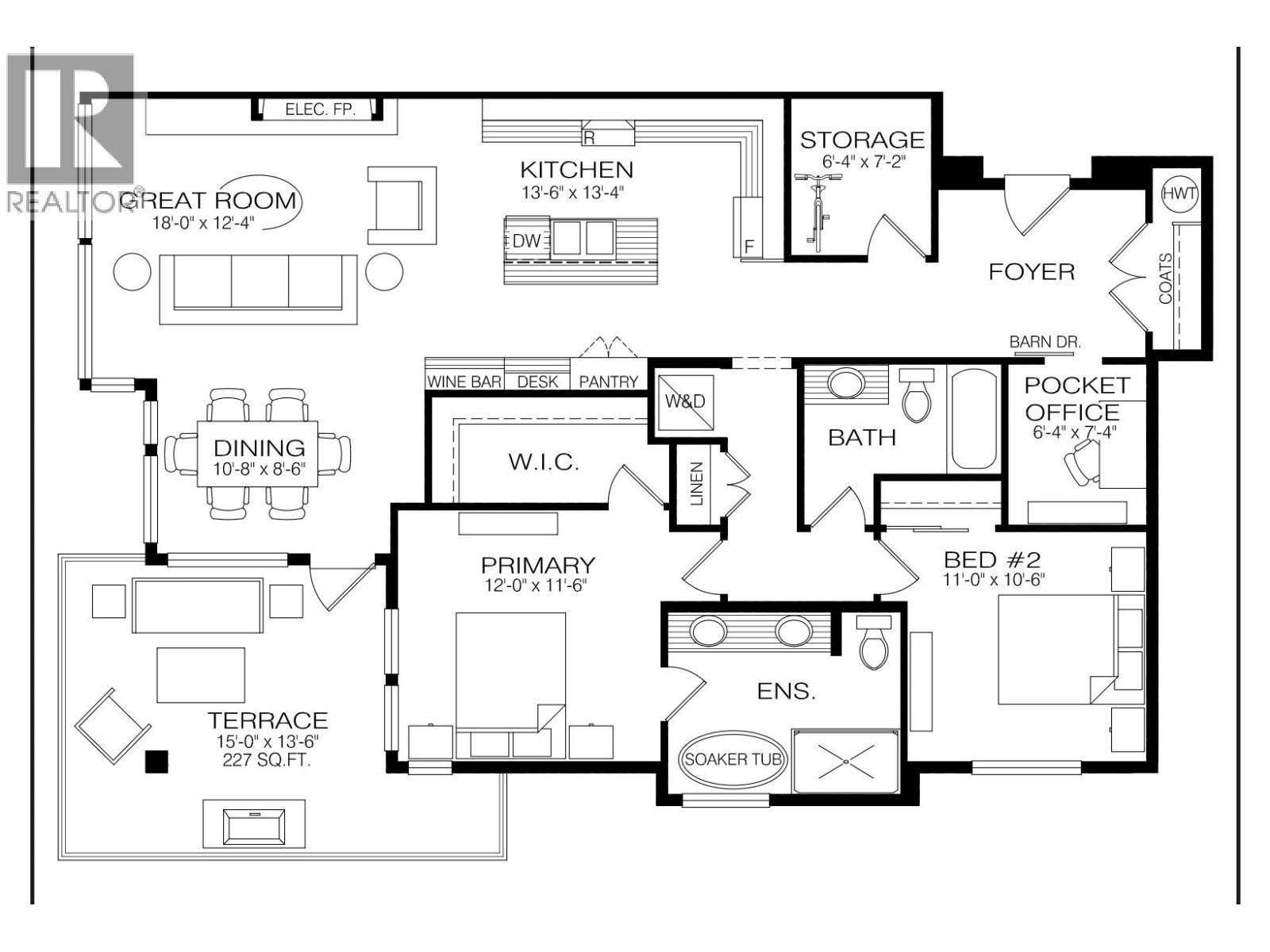
Shoreline Condos - Coming Soon! Experience contemporary lakeside living in this new boutique condo development just steps to the water! These thoughtfully designed units feature open layouts, sleek finishes, and each one will have a terrace enjoying the stunning lake and mountain views. Located steps from the water and minutes to Lakeside Park, shopping, breweries, and restaurants, this condo nicely blends urban convenience with a relaxed Kootenay lifestyle. Every unit comes with in-suite laundry and A/C, too! This specific CORNER unit 313 is a spacious 2 bedroom, 2 bathroom, 1383 SqFt, with one of the best views on the north-west facing terrace. Register for your pre-sale today! Estimated to complete in 2028. (id:6769)
Quick Stats
Key Home Data
2
BATH(S)
2
BED(S)
1383
SQFT
YES
SHOWING AVAILABLE
Property Type:
Single Family Home Ownership:
Strata
Payment Calculator
Calculate your monthly mortgage payment.
Mortgage Amount
$
Amortization
years
Payment Freq.
Interest Rate
%
Calculating...
All About the Details
See specific details below.
Neighbourhood Statistics
Get to know your neighbourhood.

