#101 371 Alexander Street
Offered at: $17
MLS®: 10369448
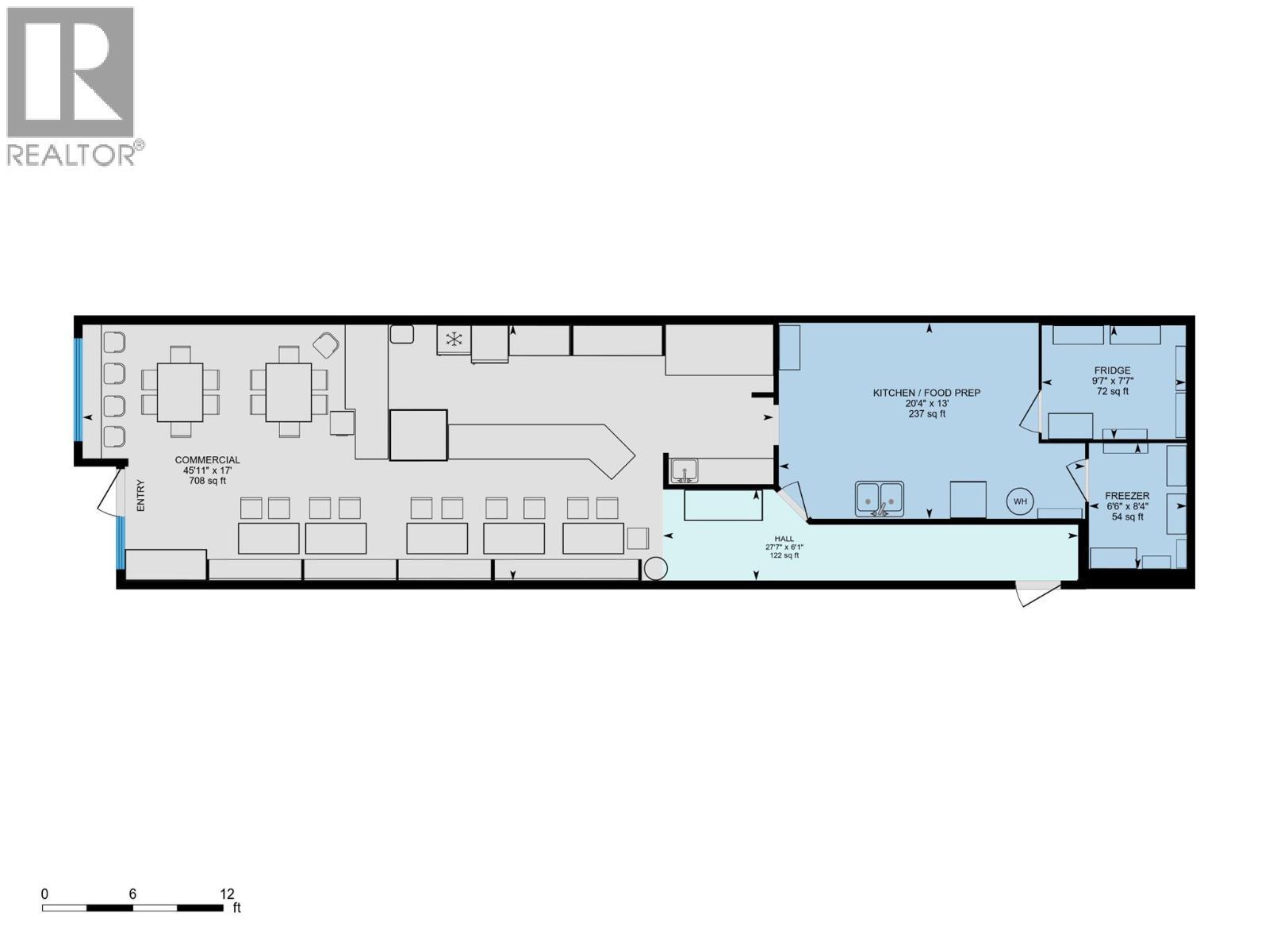
Prime location! This 1,387 square foot retail space is situated in the heart of downtown. Formerly operated as a bistro/cafe, it features a walk-in cooler and freezer, coffee bar and food prep area, spacious seating/dining area, and kitchen space ready for your finishing touches. Access to shared washrooms and directly front Alexander Street allowing for prime exposure and foot traffic. Move in immediately and customize the kitchen for your food service business or adapt the space for a variety of other potential uses. A great opportunity to start your business in a prime spot downtown Salmon Arm. (id:6769)
Quick Stats
Key Home Data
0
BATH(S)
BED(S)
1387
SQFT
YES
SHOWING AVAILABLE
Property Type:
Retail
Payment Calculator
Calculate your monthly mortgage payment.
Mortgage Amount
$
Amortization
years
Payment Freq.
Interest Rate
%
Calculating...
All About the Details
See specific details below.
Neighbourhood Statistics
Get to know your neighbourhood.

