436 Main Road
Offered at: $234,500
MLS®: 1294824
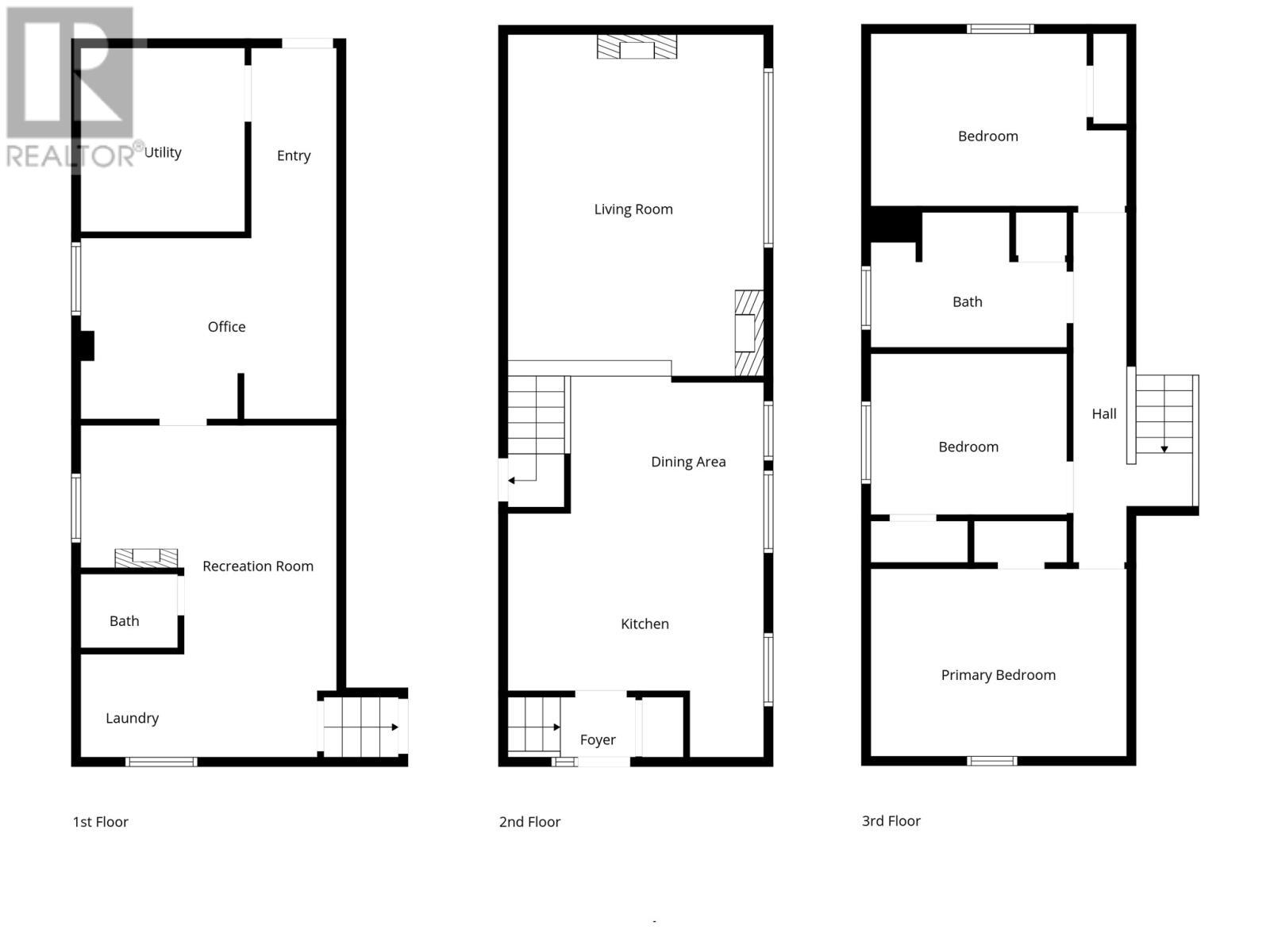
Welcome to beautiful Great Salmonier — where peaceful living meets incredible value! Enjoy the perks of no property tax, no water tax, and well water, all while being surrounded by nature in every direction. Backing directly onto a greenbelt and wrapped in trees, this property offers the privacy and tranquility so many buyers are searching for. This 3-bedroom, 1.5-bath home is full of warmth and character. Step inside through a charming farmhouse-style sliding door into the bright, open-concept kitchen, living, and dining area. The kitchen showcases shaker-style cabinetry, stainless steel appliances, and a custom accent wall that flows beautifully into matching feature walls in the living room and upstairs hallway. Crown moulding in the main living area and bathroom adds a polished touch, while shiplap detail in the hallway brings even more charm. Just off the kitchen, a door leads to the front deck — the perfect spot to enjoy your morning coffee while soaking in breathtaking mountain and ocean views, with nothing but peace and birdsong around you. Oversized windows throughout the home capture those stunning views and fill the space with natural light. Upstairs offers three comfortable bedrooms and a full bathroom. Downstairs is finished in gorgeous pine, creating a cozy retreat complete with a rec room, laundry area, half bath, and a dedicated dog grooming space with its own separate entrance — ideal for an at-home business or easily opened up to create a larger rec room if preferred. Outside, you’ll also find a garage with a wood stove, making it a perfect year-round workshop or hobby space. If you’ve been dreaming of privacy, scenery, and a home with personality and flexibility — this one is ready to impress! Don't wait, book your private showing today! (id:6769)
Quick Stats
Key Home Data
2
BATH(S)
3
BED(S)
1830
SQFT
YES
SHOWING AVAILABLE
Property Type:
Single Family Home Ownership:
Freehold
Payment Calculator
Calculate your monthly mortgage payment.
Mortgage Amount
$
Amortization
years
Payment Freq.
Interest Rate
%
Calculating...
All About the Details
See specific details below.
Neighbourhood Statistics
Get to know your neighbourhood.

