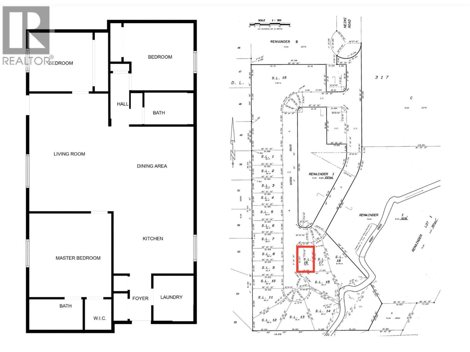
#16 1500 Neimi Road
Offered at: $419,000
MLS®: 10378067
This inviting three-bedroom, two-bathroom home in Moody Creek Estates offers a rare opportunity for a life of ease and versatility. Perfectly situated on a quiet cul-de-sac, this bright and airy residence features a spacious primary suite with a walk-in closet and private ensuite. A unique highlight is the finished concrete crawl space with interior access, providing exceptional storage solutions. Outdoor living is effortless on the generous 12x25 ft cement patio, which features a private gazebo and a convenient gas line ready for your BBQ. Inside, the living room is also plumbed for gas, making the future addition of a cozy fireplace simple and efficient. For the hobbyist, the 14x20 ft garage is a standout asset, equipped with a sub-panel, workbench, and ample natural light. The mature, low-maintenance landscaping allows you to spend your time enjoying the short two-minute drive or ten-minute stroll to the beautiful Christina Lake Provincial Park beach! With no age restrictions at Moody Creek Estates, this property is a fantastic investment for everyone from first-time buyers to retirees looking to downsize. The professionally managed strata ensures a secure, carefree lifestyle in a vibrant community. Contact your local agent to schedule a viewing of this beautiful home today! (id:6769)
Quick Stats
Key Home Data
2
BATH(S)
3
BED(S)
1296
SQFT
YES
SHOWING AVAILABLE
Property Type:
Single Family Home Ownership:
Bare Land Condo/Strata
Payment Calculator
Calculate your monthly mortgage payment.
Mortgage Amount
$
Amortization
years
Payment Freq.
Interest Rate
%
Calculating...
All About the Details
See specific details below.
Neighbourhood Statistics
Get to know your neighbourhood.

