#6 3063 Hornsberger Road
Offered at: $229,900
MLS®: 10378120
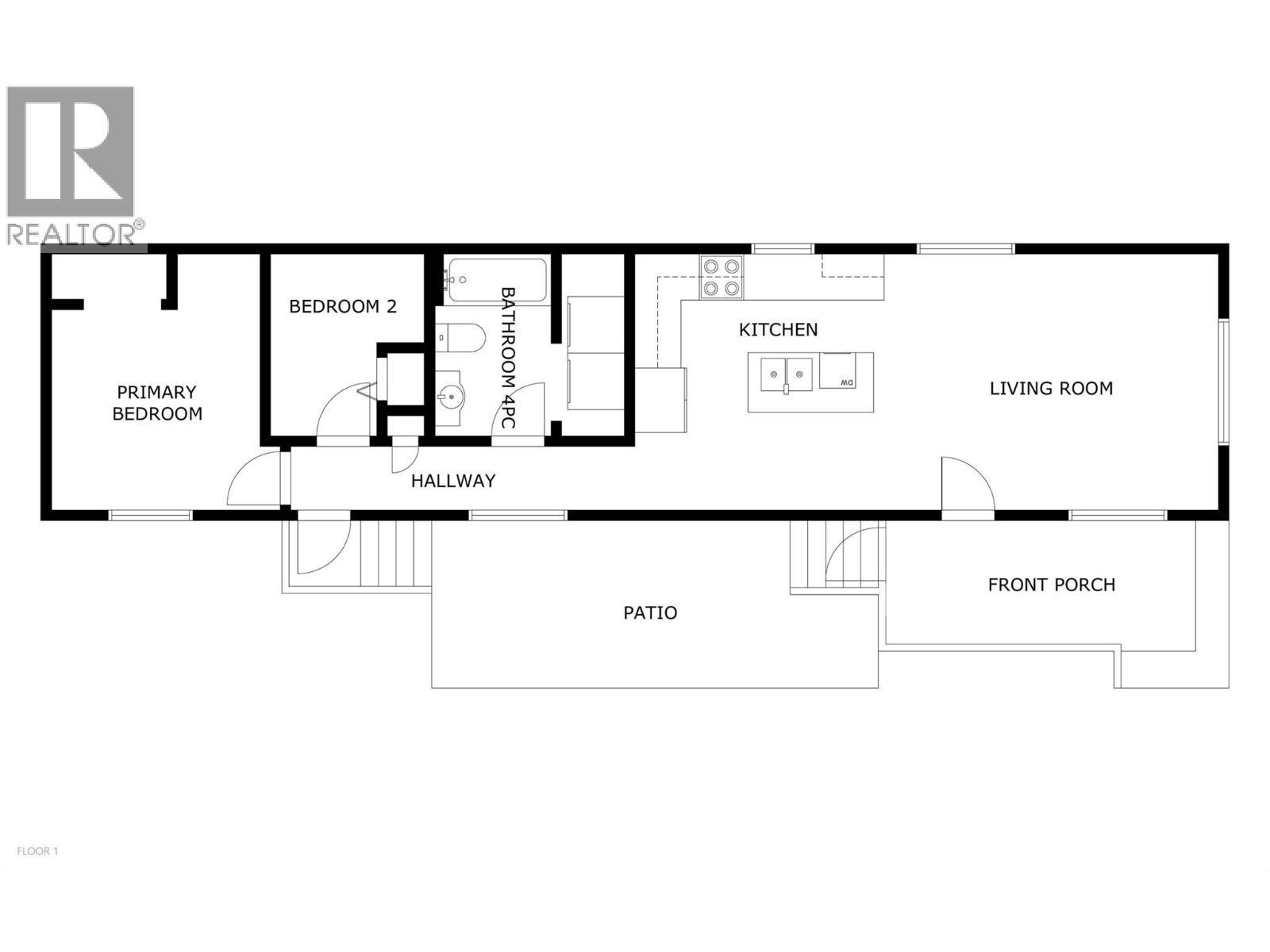
Nicely updated home in Quiet Silver Creek Neighbourhood. This 2-bedroom, 1-bathroom home offers a bright and open main living area including the kitchen with island and stainless steel appliances. Updated 4 piece bathroom with an easily accessible laundry area. Enjoy the fully fenced yard with tasteful metal privacy fence, covered deck, open patio area, plus a 7' x 16' storage shed. Many updates include the roof, siding and windows. Located in a pet friendly park (allowing 2 dogs or 2 cats with restrictions), a short walk to the community store, elementary school and just 15 minutes to Salmon Arm. (id:6769)
Quick Stats
Key Home Data
1
BATH(S)
2
BED(S)
679
SQFT
YES
SHOWING AVAILABLE
Property Type:
Single Family
Payment Calculator
Calculate your monthly mortgage payment.
Mortgage Amount
$
Amortization
years
Payment Freq.
Interest Rate
%
Calculating...
All About the Details
See specific details below.
Neighbourhood Statistics
Get to know your neighbourhood.

