6450 7th Street
Offered at: $379,000
MLS®: 10378824
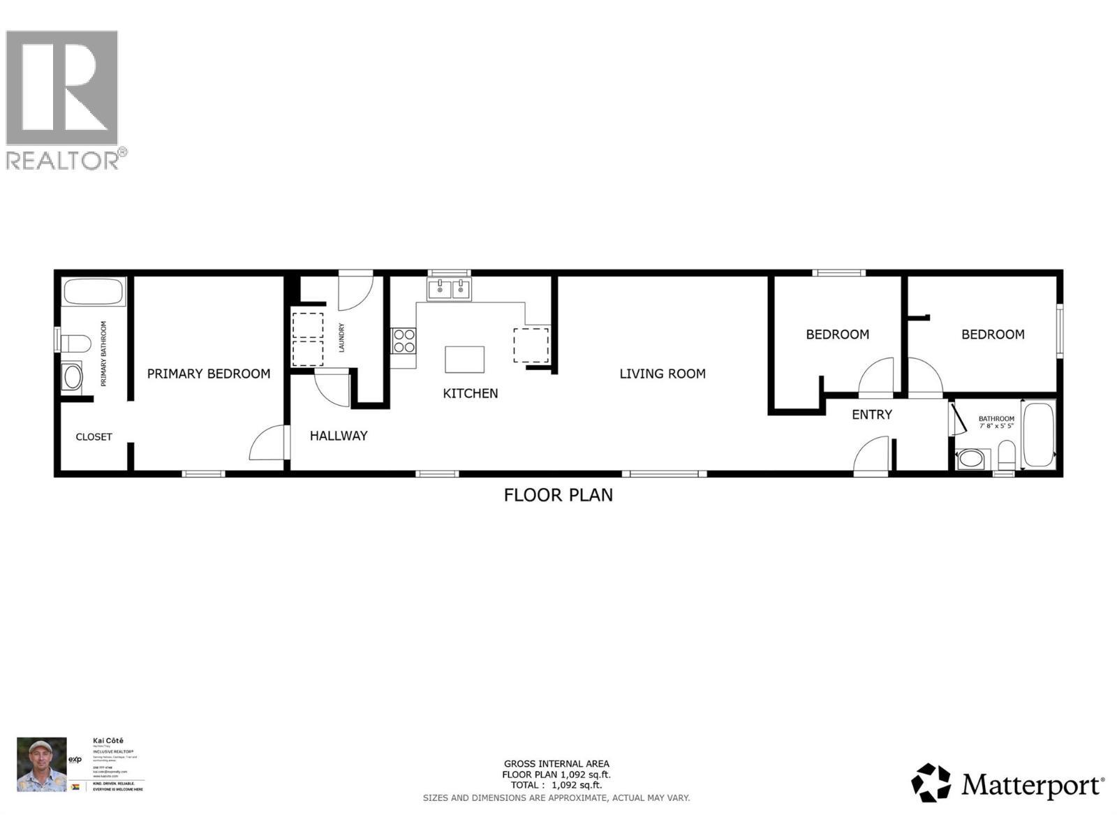
Welcome to this fully renovated mobile home on its own land, offering comfort and space. Set on a 0.237-acre lot, this move-in ready home features 3 bedrooms, 2 bathrooms, and over 1,200 sq ft of bright living space. The interior has been thoughtfully updated throughout, creating a fresh and welcoming layout that is both stylish and functional. Outside, you'll find multiple outbuildings, perfect for extra storage, a workshop, or hobby space. The lot provides room for outdoor gatherings while still being easy to maintain. Large trees on the property create privacy and provide shade during hot summer days. Located only a few minutes from downtown Grand Forks, this property offers both space and convenience. Whether you're a first-time buyer, looking to downsize, or searching for a move-in ready home with extra space, this property is a great opportunity. (id:6769)
Quick Stats
Key Home Data
2
BATH(S)
3
BED(S)
1216
SQFT
YES
SHOWING AVAILABLE
Property Type:
Single Family Home Ownership:
Freehold
Payment Calculator
Calculate your monthly mortgage payment.
Mortgage Amount
$
Amortization
years
Payment Freq.
Interest Rate
%
Calculating...
All About the Details
See specific details below.
Neighbourhood Statistics
Get to know your neighbourhood.

