#107 9510 97n Highway
Offered at: $384,900
MLS®: 10380085
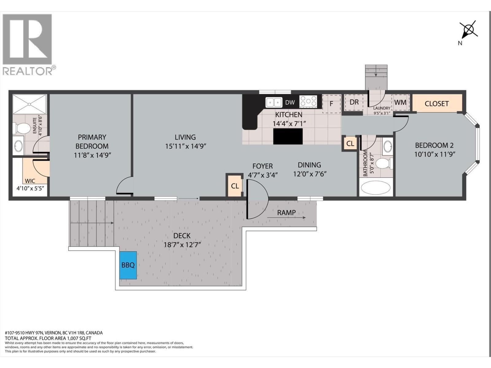
Welcome to Lawrence Heights, an adult-oriented, manufactured home park with large lots and great amenities! This two bedroom, two full bathroom, open concept manufactured home is move-in ready. With a new dishwasher and its brand new heating and cooling system installed 2025, it's all here: a huge primary bedroom with an en suite and walk-in closet, a living area with vaulted ceilings and access to the spacious private deck. The kitchen has good cupboard space and a nice-sized island. There’s a second bedroom and conveniently located laundry. Outside, you’ll love the large fenced yard with a shed and lots of parking out front. You may be downsizing, but you won't be lacking in any way. Come visit this property today and make it your own! (id:6769)
Quick Stats
Key Home Data
2
BATH(S)
2
BED(S)
1007
SQFT
YES
SHOWING AVAILABLE
Property Type:
Single Family Home Ownership:
Leasehold/Leased Land
Payment Calculator
Calculate your monthly mortgage payment.
Mortgage Amount
$
Amortization
years
Payment Freq.
Interest Rate
%
Calculating...
All About the Details
See specific details below.
Neighbourhood Statistics
Get to know your neighbourhood.

