191 King William Street

Offered at: $4,200

MLS®: X11970165

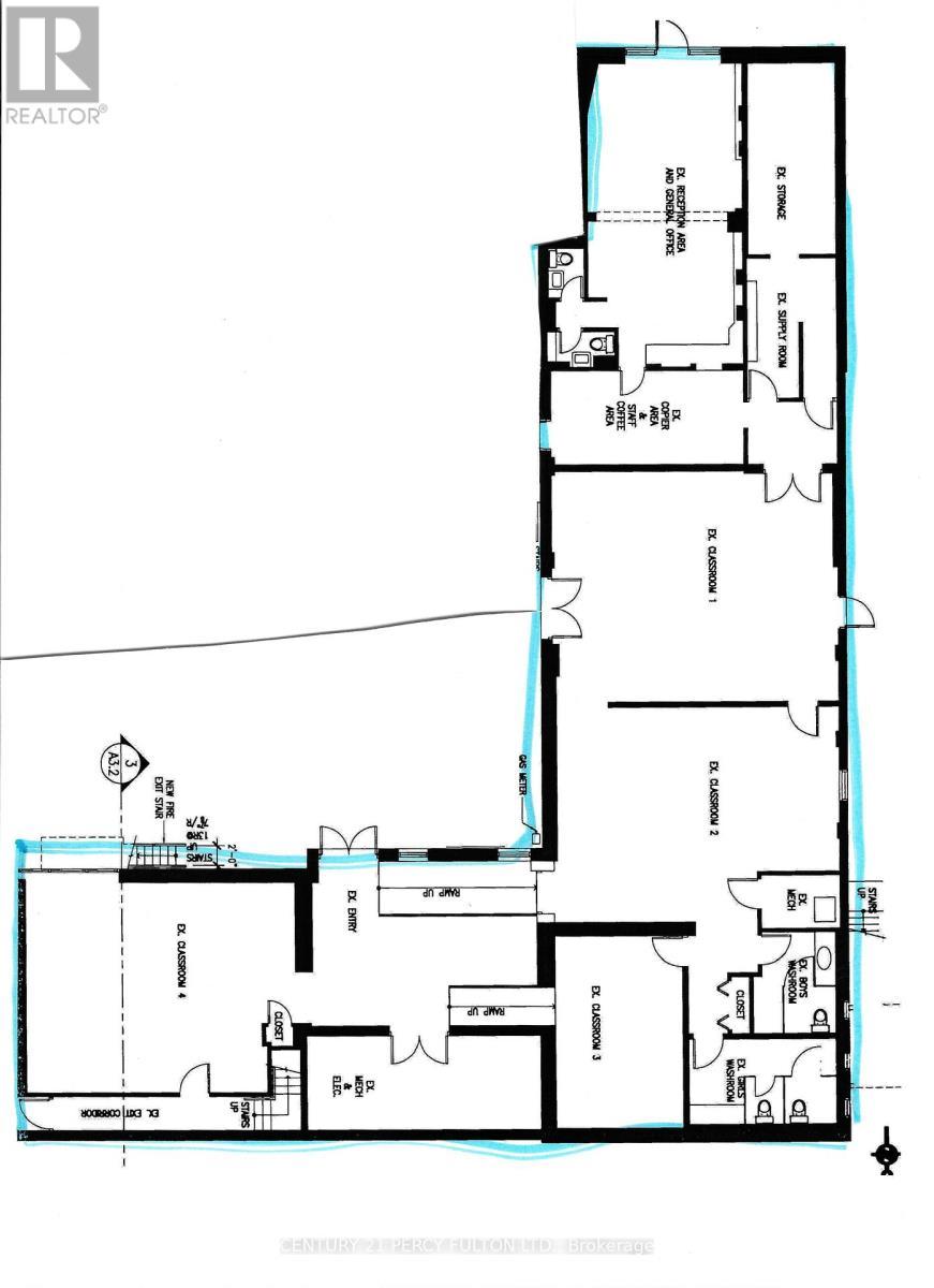
Multi Use Main Floor Unit In Downtown Hamilton, Private Direct Access From 2 Main Intersections (King William And Ferguson) Can Be Used For Office, Daycare, Private School, Etc. A Lot Of Storage Space. (id:6769)

Quick Stats

Key Home Data

0
BATH(S)
BED(S)
2000
SQFT
YES
SHOWING AVAILABLE
Property Type:
Retail

Payment Calculator

Calculate your monthly mortgage payment.

Mortgage Amount
$
Amortization
years
Payment Freq.
Interest Rate
%
Calculating...

All About the Details

See specific details below.

Neighbourhood Statistics

Get to know your neighbourhood.

Similar Properties

Other properties you might like.

Search by Keyword:
« prev 1 2 3 next »

Request a Showing

Have questions about this property?

Contact RE/MAX Four Seasons
About This Property.


Office: 12503656767